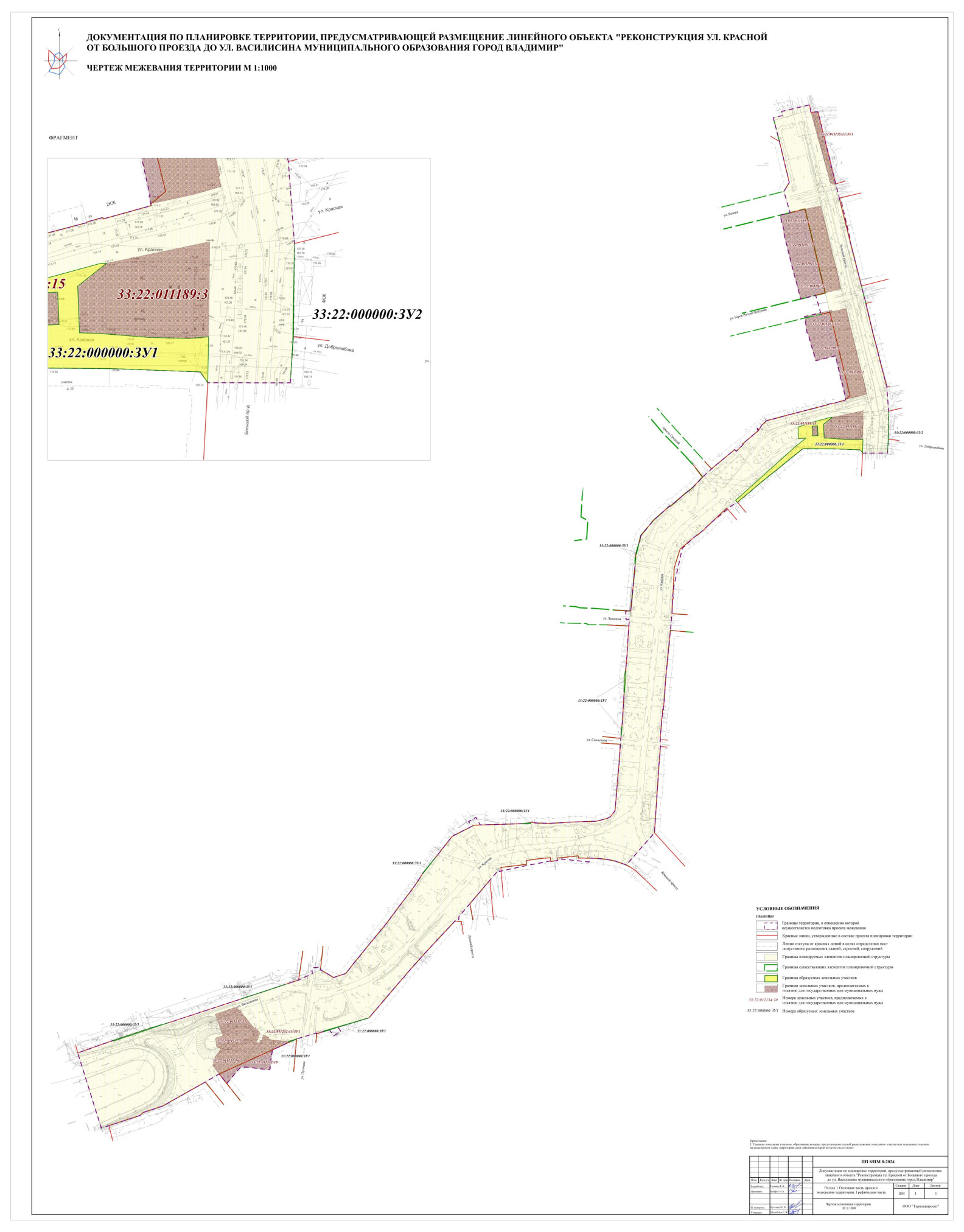
Администрация города Владимира через год после публичных слушаний утвердила проект планировки территории под реконструкцию дороги на улице Красной - между Большим проездом и улицей Василисина. Соответствующее постановление опубликовано на официальном сайте органов местного самоуправления.
Проектом предусмотрено расширение отрезка дороги протяженностью 1,3 километра до 4-х полос шириной 3,25 метра каждая полоса, устройство пешеходного тротуара шириной 2,25 метра, водоотводного лотка протяженностью 1,64 километра и водопропускной трубы, реконструкция воздушной линии электроснабжения.
После расширения улица Красная станет дополнительным выездом с кольцевой развязки между улицами Чапаева и Сперанского. Для этого власти намерены продлить кольцо, а также реконструировать сам Большой проезд, по которому транспорт сможет в районе площади Победы выезжать на проспект Ленина.
Чтобы претворить планы в жизнь, мэрии Владимира понадобится «изъять для государственных или муниципальных нужд» в общей сложности 17 земельных участков. По всей видимости, строения, расположенные там, будут снесены. При этом в зоне реконструкции дороги попадают не только гаражи, но и жилые дома.
| № п/п | Вид разрешенного использования з/у | Местоположение изымаемого з/у |
|---|---|---|
| 1 | Содержание индивидуального жилого дома | ул. Героя Кутузова, з/у 36/10 |
| 2 | Содержание индивидуального жилого дома | Большой пр-д, 8 (2 з/у) |
| 3 | Индивидуальная жилая застройка | ул. Разина, 45 |
| 4 | Содержание временного металлического гаража | Большой пр-д, 16 |
| 5 | Под общественную застройку | Большой пр-д, 16А |
| 6 | Под жилую застройку | ул. Красная, 36/16 |
| 7 | Содержание индивидуального жилого дома | Большой пр-д, 14 |
| 8 | Для строительства одноэтажного деревянного дома | Большой пр-д, з/у 12/27 |
| 9 | Жилая застройка | ул. Болотникова, 28 |
| 10 | Жилая застройка | ул. Красная, 89 |
| 11 | Автомобильные мойки | ул. Красная, 91 |
| 12 | Жилая застройка | ул. Пугачева, з/у 44/87 |
| 13 | Содержание многоквартирного жилого дома | ул. Разина, з/у 22 |
| 14 | Жилая застройка | ул. Красная, 93 |
| 15 | Содержание улицы районного значения; для индивидуального жилищного строительства | ул. Красная |
| 16 | Улично-дорожная сеть | Большой пр-д |
Местные жители во время общественных обсуждений проекта были против расширения дороги на улице Красной,
обращает внимание «Чеснок». Реконструкция, по мнению людей, ухудшит условия жизни в районе, в том числе экологическую обстановку, но при этом едва ли кардинально разрешит накопившиеся транспортные проблемы.
Telegram-канал Зебра ТВ: новости в удобном формате.
